안녕하세요
오늘은 내손 다구역의 분양가 분양일정, 일반분양 세대수 등에 대해서 설명드릴게요.
사업명은 내손 다구역 재개발 정비 사업입니다.
위치는 의왕시 복지로 82 일원이고요 지금은 이주 및 철거 진행 중이네요.
건폐율은 50% 이하, 용적율을 300% 이하입니다.
총세대수는 2633세대 대단지네요 그중 132세대는 임대 세대입니다.
[의왕시 재개발 관련 동영상 참고하세요. ▼▼▼]

추진현황은 아래와 같습니다.
2008.07.21 추진위원회 승인
2010.03.24. 기본계획 변경 승인
2011.03.25. 경기도 도시계획위원회 심의
2011.05.13. 경기도 도시계획(분과) 위원회 심의(조건부 의결)
2011.06.15. 정비구역 지정
2014-07-08 조합설립인가 2014.09.27. 시공자 선정(GS·SK)
2016.11.07. 건축심의 완료 2016.12.06. 조합설립 변경인가
2017.04.24. 정비계획 경미한 변경 고시
2018.04.11. 사업시행계획인가 의왕시 고시 2018.11.22. 조합설립 변경인가(2차)
2019.02.27. 조합설립 변경신고 수리 2019.06.12. 관리처분계획 인가
-출처: 의왕 시청
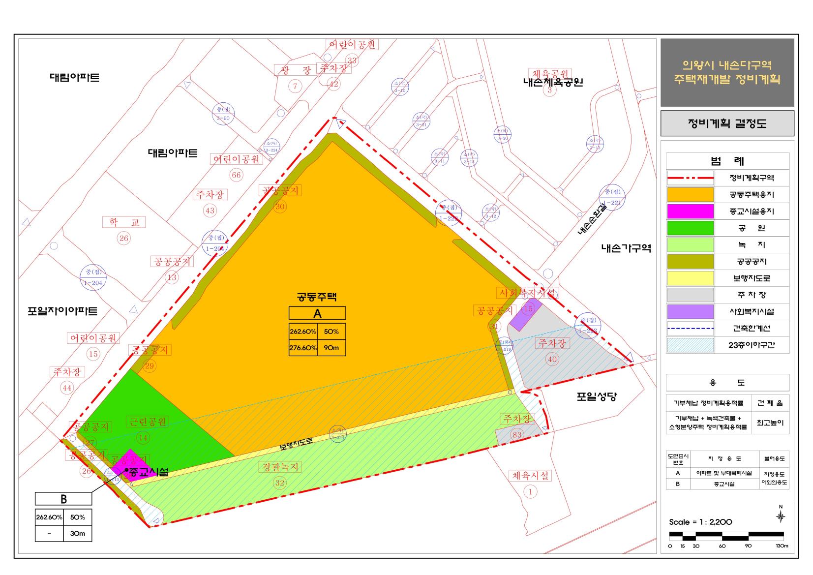
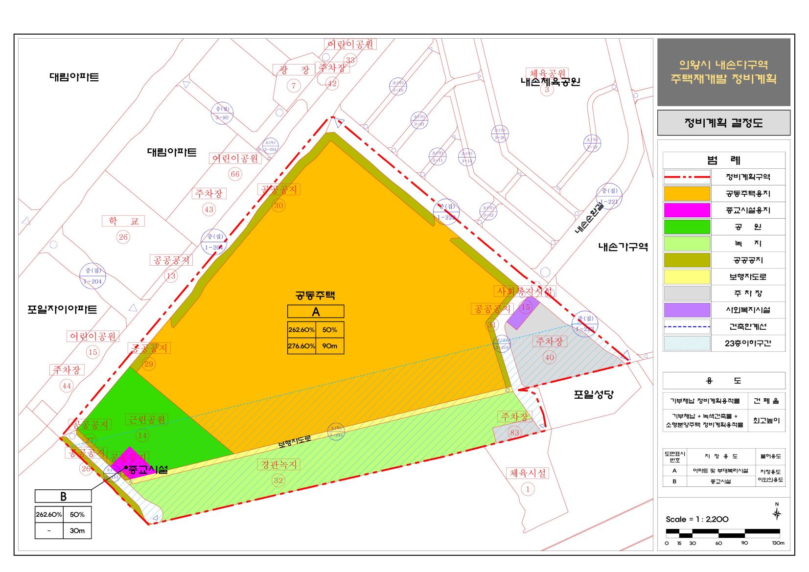
아래 사진은 내손대구역 정비계획 결정도 입니다.

아래 사진은 조감도 입니다.


내손 다구역의 조합원 평균 분양가는 평당 1500만 원입니다.
59m 2는 3억 7512억 원이고요, 84m 2는 5억 891만 원입니다.
일반 평균 분양가는 평당 1천 930만원으로 추정하고 있습니다.
인근 신축 단지의 분양가 및 실거래가는 급 상승 중이네요.
안양 평촌 생활권으로 교통 시설 및 교육 시설 등의 인프라가 잘 갖춰져 있으며,
오전, 학의 삼동등의 의왕시 타 단지보다 선호도 가 높습니다.
주변 교통 호재는 내손 지역은 2026년 인덕원 동탁 복선 전철이 신설될 예정으로
농수산물 시장역이 들어설 예정이네요. 교통 문제가 해결된다면 인구 증가가 예상되네요.
살기 좋은 아파트를 제공하기 위해서 최첨단의 소음 방지 시설이 설치될 예정입니다.
39형 162세대, 49형 398세대, 59형 957세대, 74형 470세대, 84형 396세대
99형 156세대, 112형 88세대, 130형 이상 6세대로 구성되게 되네요.
명품단지로 탈바꿈 하기를 기대 하겠습니다. 이상입니다.
[추천글]
